BulstrodeSt
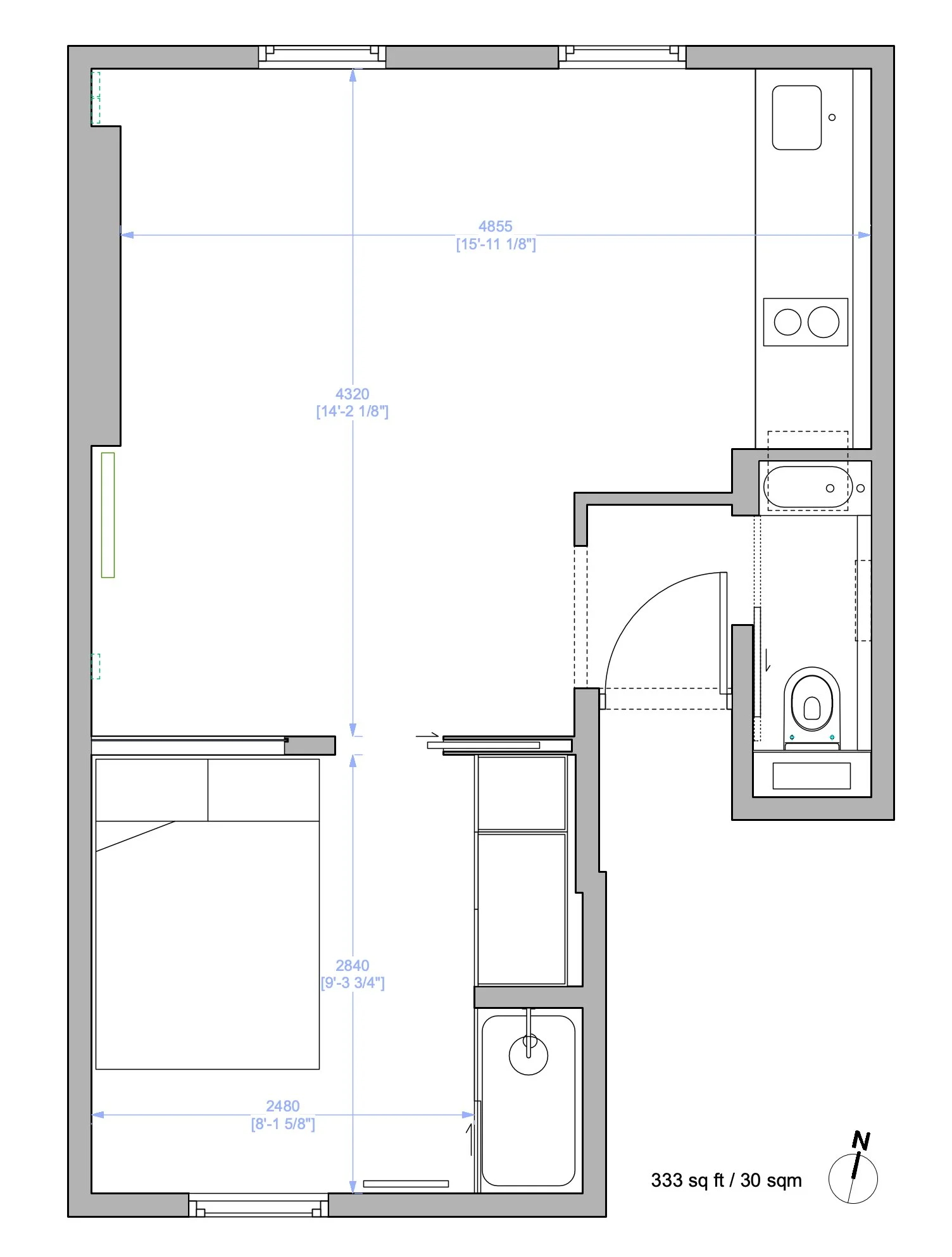
This small one bedroom flat is located on Bulstrode Street, just off Marylebone High Street. Designed by two architects, the challenge was to maximise the feeling of space and light within the 30 sqm footprint. A glazed panel allows south light from the bedroom to brighten the north-facing living room, whilst making the room appear larger. The extra deep kitchen adds worktop space for storage without compromising working area, whilst a 3kg load washing machine projects from the kitchen area into the WC room to allow all appliances to fit. It’s a lovely flat, and it feels like staying in a hotel - waking up in the morning and rolling straight onto Marylebone High Street. The flat two doors down has added a roof terrace, so there is potential for this to do the same, subject to consents.
Share of Freehold
New Worcester Bosch boiler installed earlier this year (2025)
Neff integrated dishwasher
Neff integrated combi oven / microwave
Two ring induction hob
Under-counter fridge freezer
Zanussi 3kg washing machine
Corian worktop and splashback
Havwoods oak engineered floor
Direct access to roof
